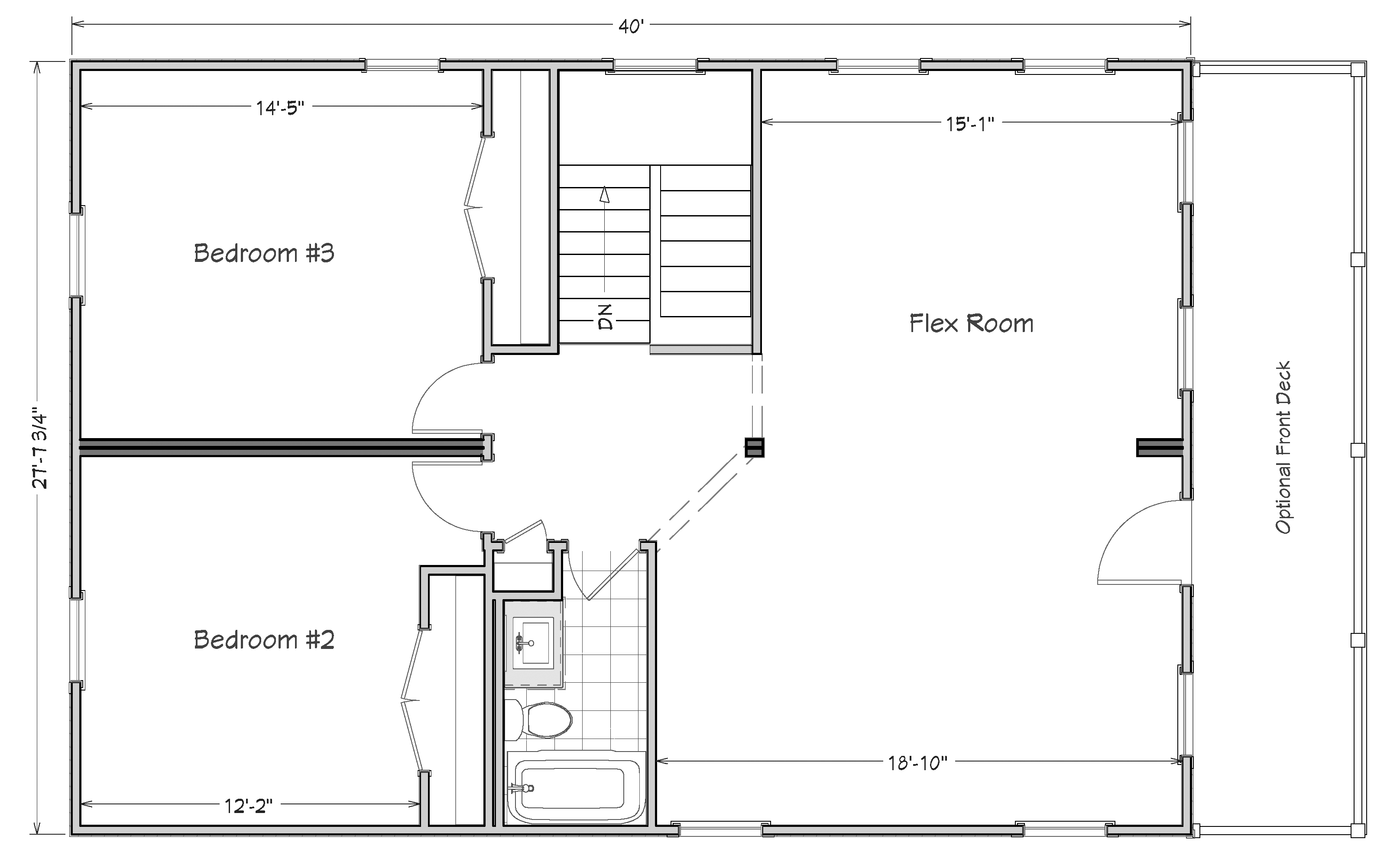
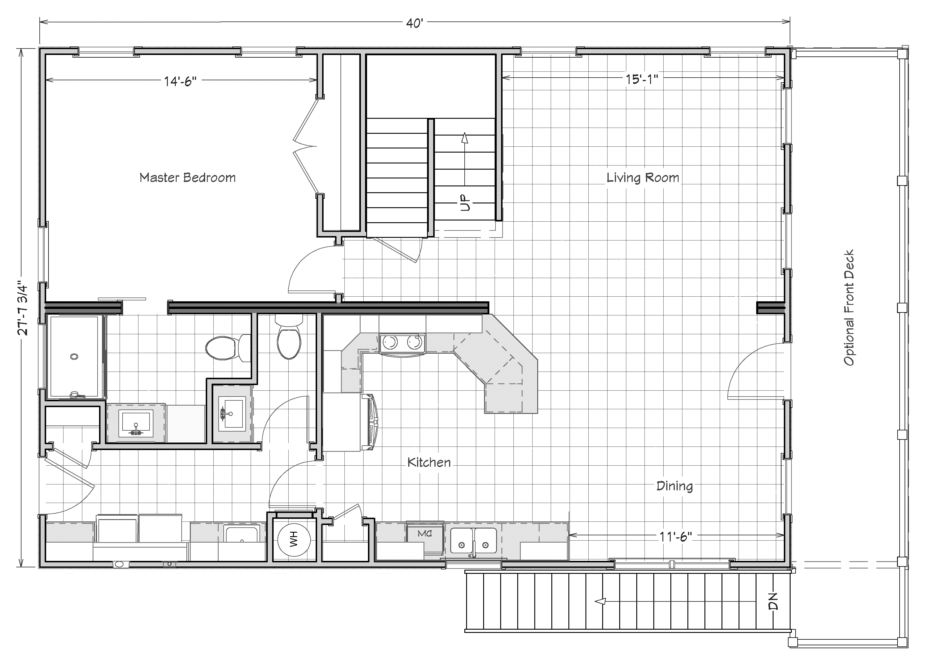
Woodberry CoastalBrian Bone2025-12-03T19:29:06+00:00 Scroll down to tour our house in a 360 viewer.360 Viewer: Click And Drag To Look Around Woodberry Coastal2104 Sqft • 4-5 Beds • 2.5-3 Baths DOWNLOAD BROCHUREBACK TO HOME PLANS Tour Form Find Out More! Name * Email * Phone Choose Location * HampsteadHubertOcean Isle Comments/Questions Captcha SUBMIT Share This Story, Choose Your Platform! FacebookXBlueskyRedditLinkedInWhatsAppTelegramTumblrPinterestXingEmail Related Projects Salem Coastal Sea Grove Coastal Salem Cape Coastal Dogwood II Coastal