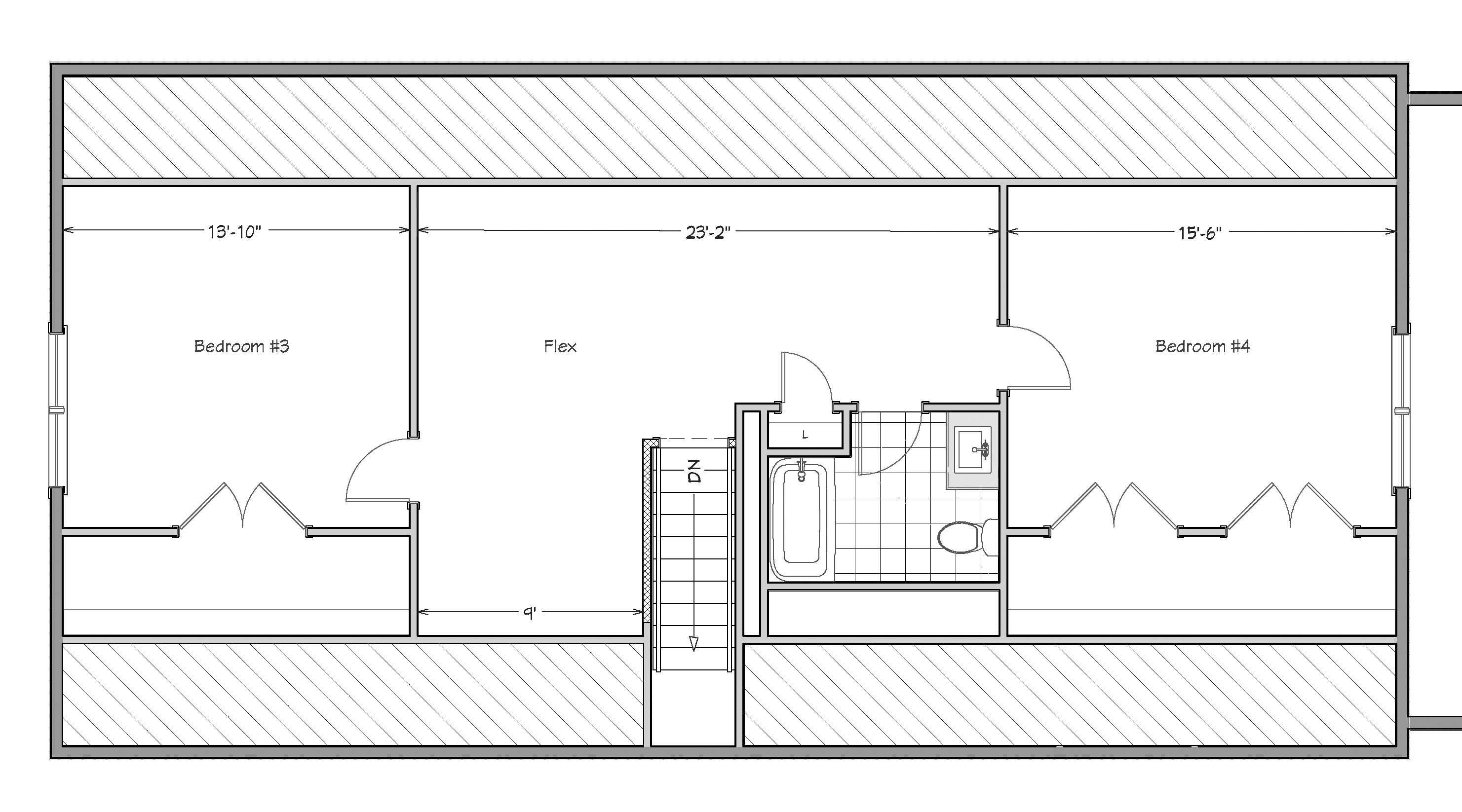
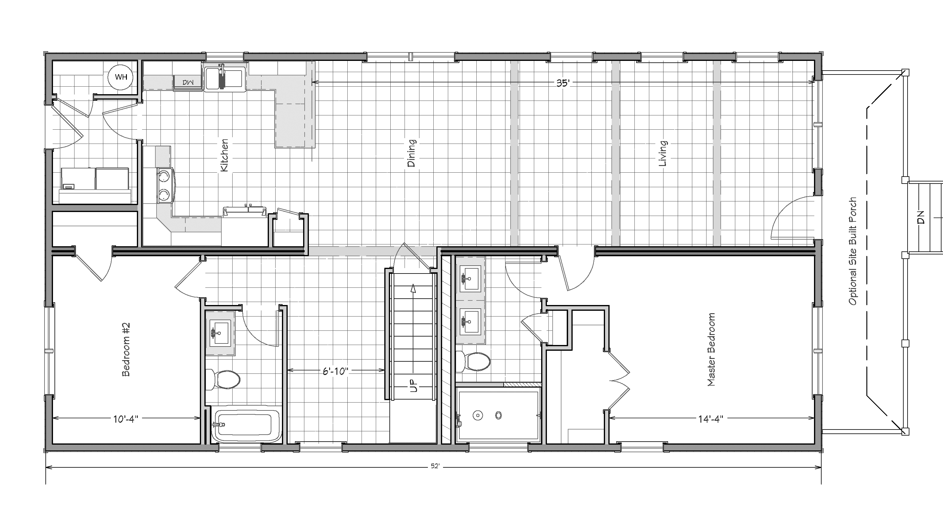
Salem Cape CoastalBrian Bone2026-04-14T00:58:42+00:00 Scroll down to tour our house in a 360 viewer.360 Viewer: Click And Drag To Look Around Salem Cape Coastal2450 Sqft • 3-4 Beds • 3 Baths DOWNLOAD BROCHUREBACK TO HOME PLANSVIRTUAL TOUR Tour Form Find Out More! Name * Email * Phone Choose Location * HampsteadHubertOcean Isle Comments/Questions Captcha SUBMIT Share This Story, Choose Your Platform! FacebookXBlueskyRedditLinkedInWhatsAppTelegramTumblrPinterestXingEmail Related Projects Salem Coastal Woodberry Coastal Sea Grove Coastal Dogwood II Coastal