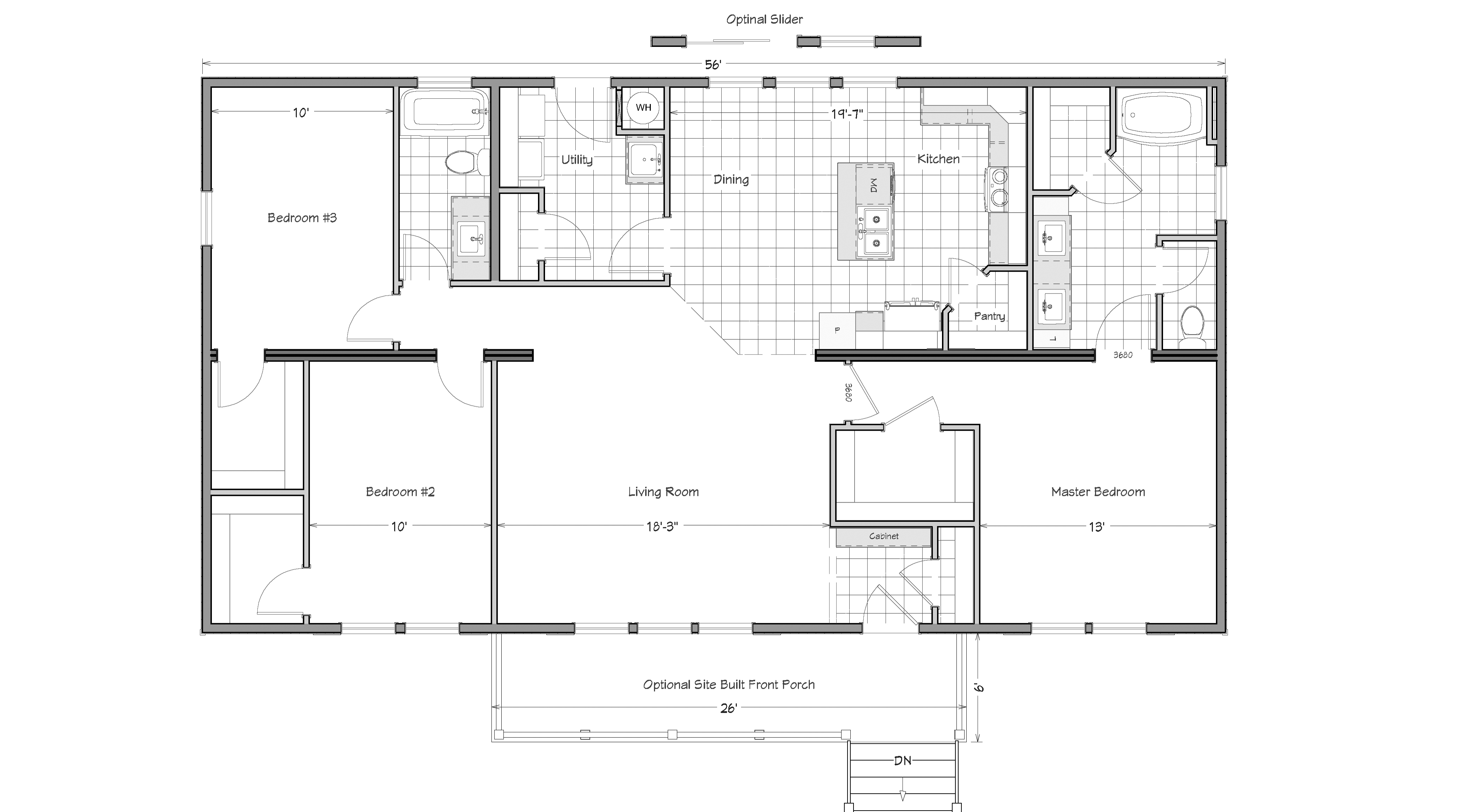
Walton 56Brian Bone2025-12-03T19:48:47+00:00 Scroll down to tour our house in a 360 viewer.360 Viewer: Click And Drag To Look Around Walton 561699 Sqft • 3 Beds • 2 Baths DOWNLOAD BROCHUREBACK TO HOME PLANSVIRTUAL TOUR Tour Form Find Out More! Name * Email * Phone Choose Location * HampsteadHubertOcean Isle Comments/Questions Captcha SUBMIT Share This Story, Choose Your Platform! FacebookXBlueskyRedditLinkedInWhatsAppTelegramTumblrPinterestXingEmail Related Projects Pine Ridge II Grandview 76 Brooksdale Heartland II