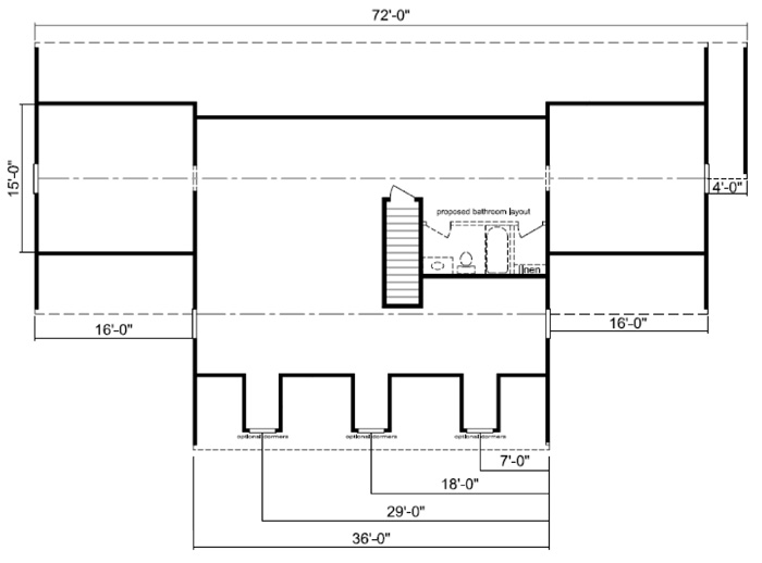
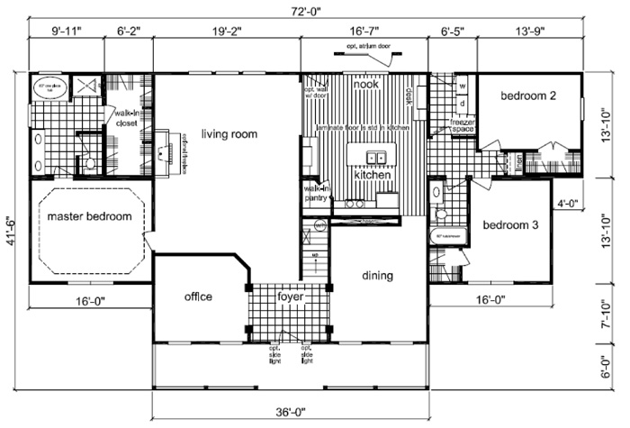
Emeraldimpactmedia2025-12-03T19:47:33+00:00 Emerald3600 Sqft • 3-5 Beds • 3-4 Baths DOWNLOAD BROCHUREBACK TO HOME PLANS Tour Form Find Out More! Name * Email * Phone Choose Location * HampsteadHubertOcean Isle Comments/Questions Captcha SUBMIT Share This Story, Choose Your Platform! FacebookXBlueskyRedditLinkedInWhatsAppTelegramTumblrPinterestXingEmail Related Projects Pine Ridge Cape Tidewater Carolina Chalet Grandview Cape