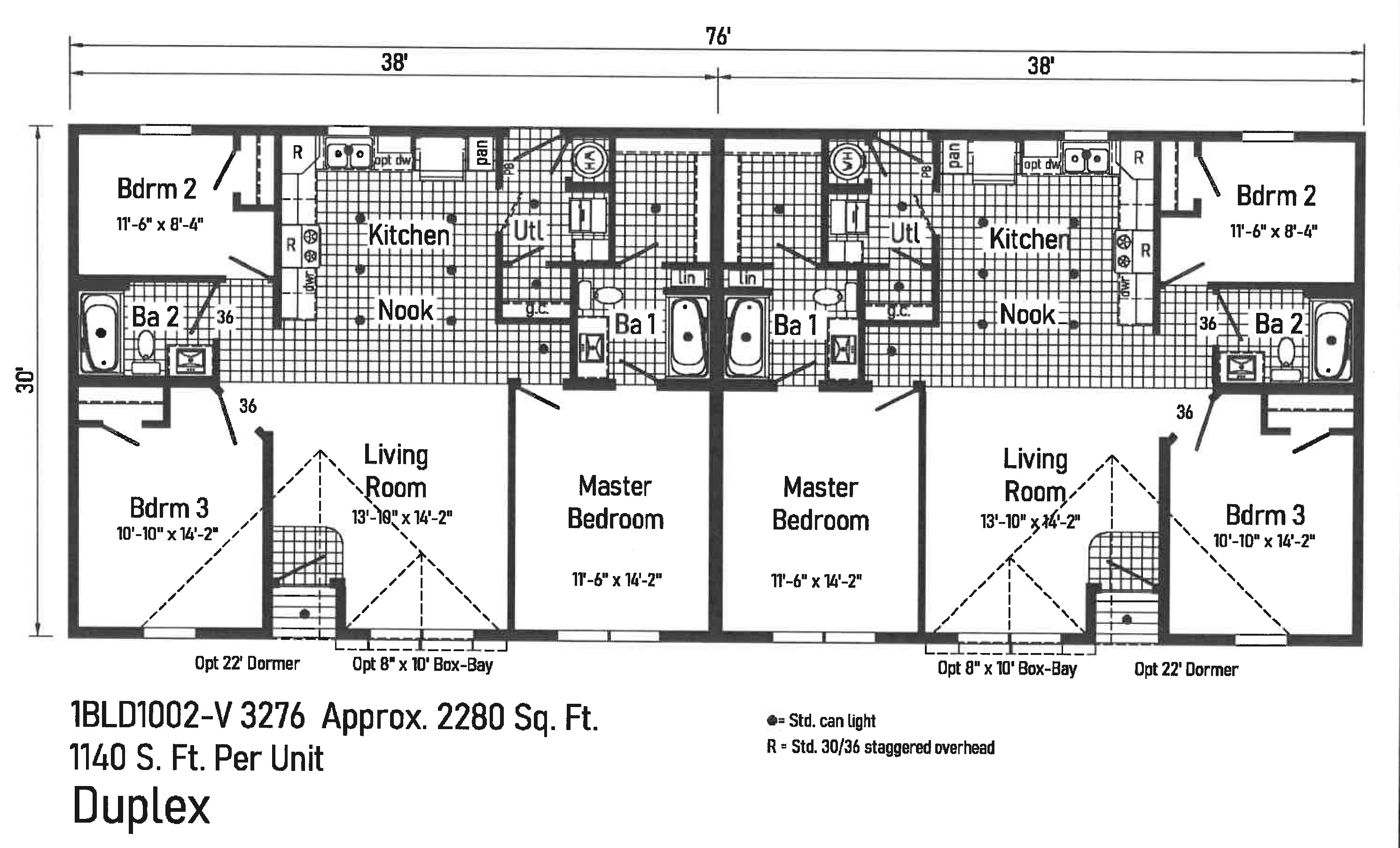
Crouse Ridge DuplexBrian Bone2025-12-03T19:47:46+00:00 Scroll down to tour our house in a 360 viewer.Crouse Ridge Duplex1140 Sqft Per Unit • 3 Beds • 2 Baths DOWNLOAD BROCHUREBACK TO HOME PLANS Tour Form Find Out More! Name * Email * Phone Choose Location * HampsteadHubertOcean Isle Comments/Questions Captcha SUBMIT Share This Story, Choose Your Platform! FacebookXBlueskyRedditLinkedInWhatsAppTelegramTumblrPinterestXingEmail Related Projects Bridgestone Duplex Pennington Duplex Sanibel Coastal Duplex Sanibel Duplex