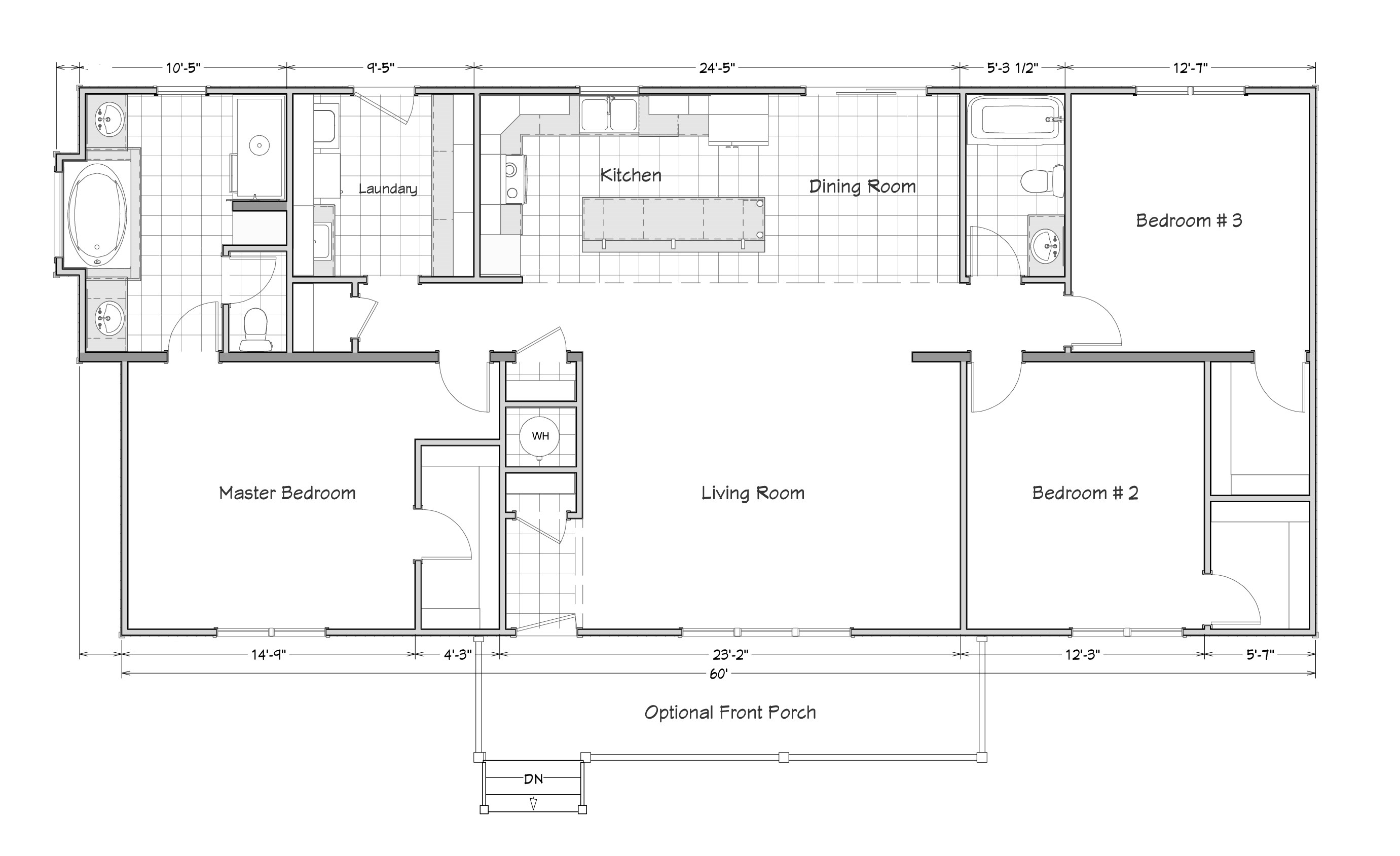
Carolina RanchBrian Bone2025-12-03T20:09:46+00:00 Scroll down to tour our house in a 360 viewer.360 Viewer: Click And Drag To Look Around Carolina Ranch1659 Sqft • 3 Beds • 2 Baths DOWNLOAD BROCHUREBACK TO HOME PLANSVIRTUAL TOUR Tour Form Find Out More! Name * Email * Phone Choose Location * HampsteadHubertOcean Isle Comments/Questions Captcha SUBMIT Share This Story, Choose Your Platform! FacebookXBlueskyRedditLinkedInWhatsAppTelegramTumblrPinterestXingEmail Related Projects Walton 56 Grandview 76 Brooksdale Heartland II